Home
About Us
Portfolio
Clients
Contact Us
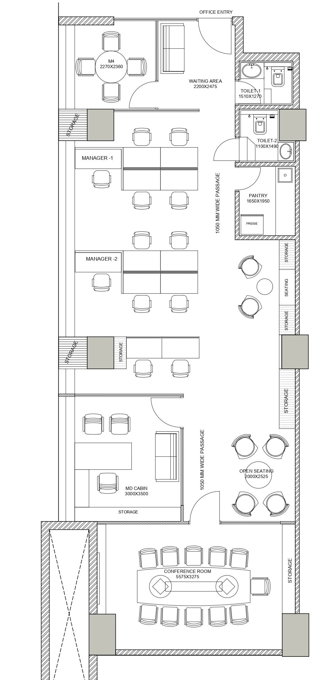
DLF CARPORATE GREEN
Address: SECTOR 74 ,GURGAON
Back to Portfolio
×
❮
❯
Call Now